mobi
 

- Website -

 
contact
联系我们 contact
联系人
  •  Can't see clearly? Click to replace
Current Location Current Location:首页 > 案例展示 >
 

CASE

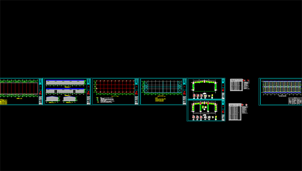
河北煜袁钢结构

肯尼亚、毛里塔尼亚、加纳、索马里仓库

时间:2024-06-01 20:58:41 点击量:73

来自中国的钢铁仓库建筑

尺寸:60mx18mx6m

面积:1080平方米

材料:镀锌h钢

用途:仓库、糖厂、炼油厂、化工厂、加工厂等。

如果您需要构建一个,请立即联系我们!

 
 
 

河北煜袁钢结构有限公司

联系人: 高经理
手机: +86 15822013355
邮箱: yysteelstructure01@163.com
地址:河北省沧州市泊头市建设街(瑞幸咖啡三楼)
 

Copyright © 2024-2025 http://www.yysteelwarehouse.com. 版权所有 河北煜袁钢结构有限公司 版权所有.